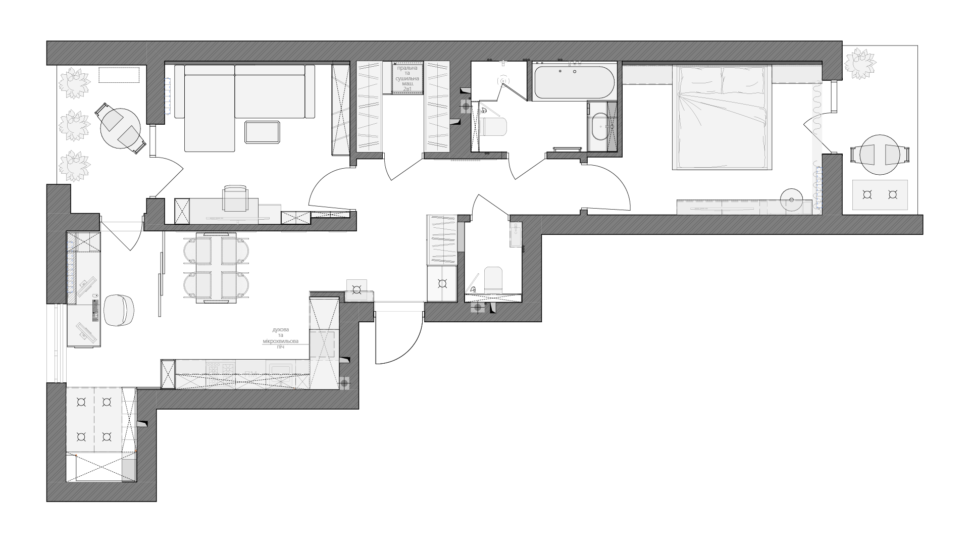
ЖК Safe Town, 69 кв.м

Обговорити проєкт
pattern 3
3D Тур
Львів
ionicons-v5-g
69 м²

Квартира з характером — для тих, хто не боїться кольору. Глибокі теракотові фасади, оливкові стіни, фісташкові акценти — сміливо, але з точним балансом. Террацо на підлозі задає ритм, а система зберігання та меблі адаптовані під реальне життя: з робочими зонами, місцем для відпочинку й нічого зайвого. Простір продумано до деталей: і зручно, і цікаво.

Галерея