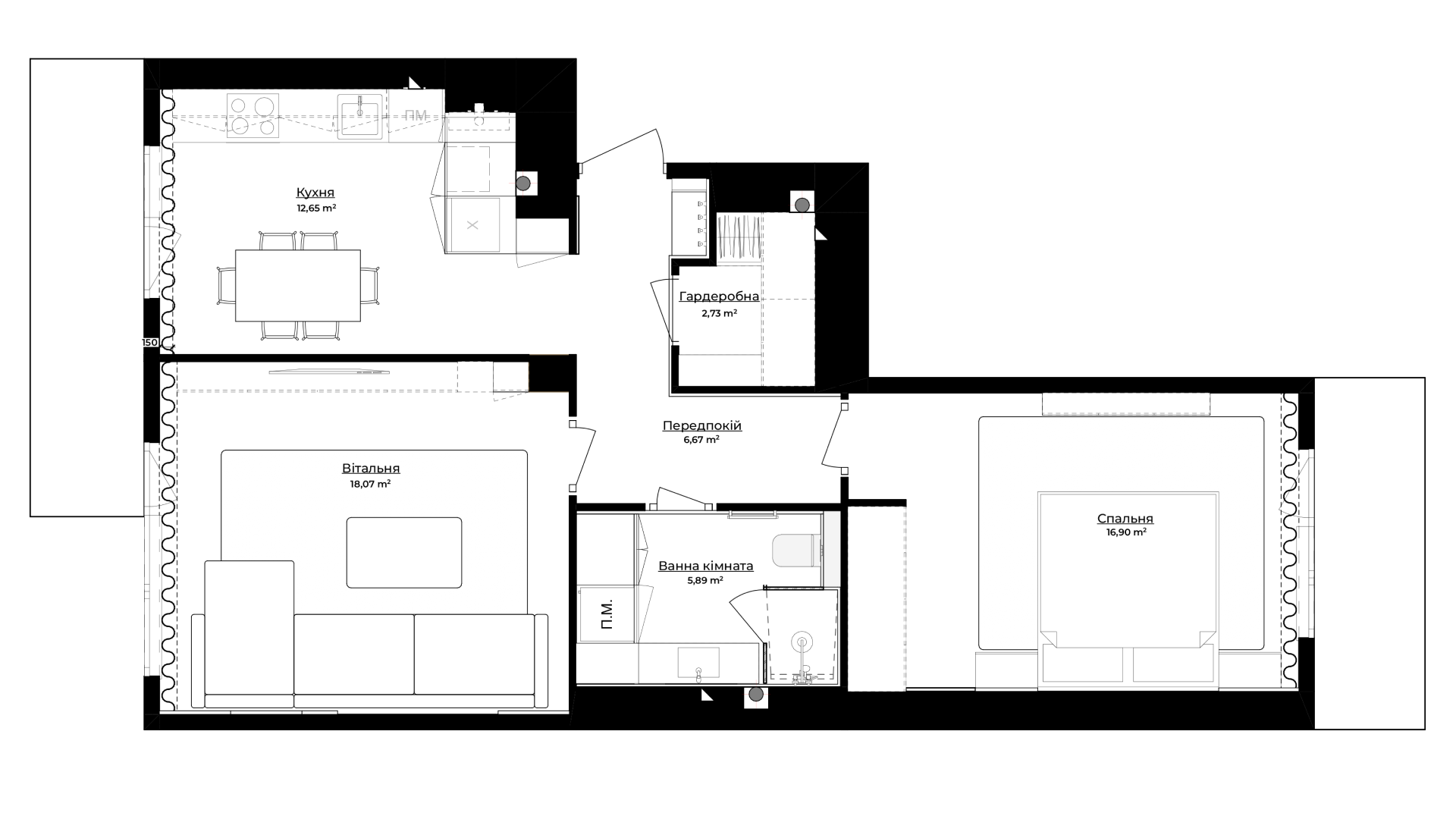
Еко-Дім, 63 кв.м
Обговорити проєкт
Львів, вул. Миколайчука
63 м²
Просторий, теплий і ,водночас, затишний інтер’єр у стилі мінімалізм, створений як подарунок для батьків. Деревʼяні панелі додають тепла, декоративна штукатурка підкреслює фактурність, а зелений акцент у тканинах та плитці оживляє простір. Мінімалізм, що підкорив клієнта з перших ескізів і став справжнім натхненням для всієї родини.
Галерея